Negozio in vendita

Bagnolo In Piano, Via Borri
€ 45.000
61 Mq 61 Mq
1 bagno 1 bagno

Negozio in vendita

Bagnolo In Piano, Via Borri

Descrizione annuncio

BAGNOLO IN PIANO-

Proponiamo a Bagnolo in piano all'interno del centro commerciale 'Il Multiplo' in cui sono presenti diverse attività commerciali e un grande parcheggio pubblico .

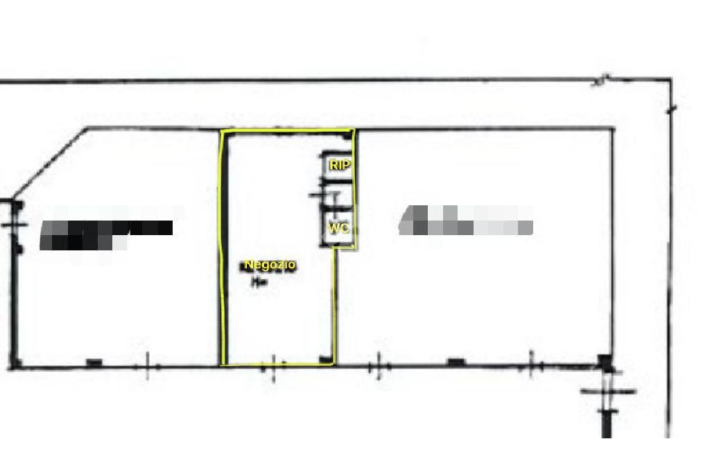
Negozio di 61 mq con ripostiglio, bagno e antibagno.

L'immobile gode di vetrina interna al centro commerciale più due vetrine fronte strada.

LIBERO E PRONTO ALL'USO.

PER AVERE MAGGIORI INFORMAZIONI O PRENOTARE LA TUA VISITA PRIVATA CONTATTACI AI SEGUENTI NUMERI 3457186940 o 05221965332.

Mostra tutto

Nelle vicinanze

Trasporto pubblico Trasporto pubblico
Bagnolo
Bagnolo
540 m
Pratofontana Chiesa
Pratofontana Chiesa
2,8 Km
Via Raffaello 24
Via Raffaello 24
2,8 Km
Bagnolo Soave
Bagnolo Soave
1,7 Km
Pratofontana
Pratofontana
1,8 Km
Scuole Scuole
Istituto Comprensivo "Ezio Comparoni"
780 m
Scuola Primaria Madre Teresa di Calcutta
2,7 Km
Farmacia Farmacia
Farmacia Comunale Bagnolo
80 m
Farmacia Panciroli
640 m
Parafarmacia Salute e Benessere
1,1 Km
Supermercati Supermercati
DIMEGLIO
60 m
COOP
1,2 Km
Negozi Negozi
ECU
920 m
Forno F.lli Rondini
1,0 Km
Ristoranti Ristoranti
Ca' Rossa
690 m
Ristoranti
2,2 Km
Trattoria da Probo
2,4 Km
Palato ducale
2,6 Km
Mensa CIR
2,6 Km
Mostra tutto

Caratteristiche

Rif.:
60971264
Piano:
Terra
Posti auto:
6
Condizionamento:
Autonomo
Ascensore:
No
Riscaldamento:
Centralizzato
Mostra tutto
Prezzo Prezzo
€ 45.000
Rata mutuo Rata mutuo
€ 212 / mese
Spese annue Spese annue
€ 0
Proponi il tuo prezzoProponi il tuo prezzo

Classe Energetica

F
F
F
F
F
F
F
F
F
Anno di costruzione:
1990
Riscaldamento:
Centralizzato
Tipo impianto:
A radiatori
Tipo alimentazione:
Metano

Ti interessa visionare l'immobile?

Fissa un appuntamento  Fissa un appuntamento

Richiedi informazioni

Clicca su Leggi per aprire l'informativa
* Questi campi sono obbligatori

Calcola il tuo mutuo

Semplice e senza impegno
Anticipo

( % )
Mutuo

( % )

pochi semplici passi

inserisci i tuoi dati
Questionario completato
Grazie per aver richiesto un appuntamento senza impegno con un nostro Consulente del Credito e Assicurativo.

Hai inserito correttamente tutti i dati necessari e a breve riceverai una e-mail con un link da convalidare per inviare i tuoi dati.
Affiliato
Tecnoindustriale Srl
Via A.Gramsci, 43 42124 Reggio Nell'Emilia (RE)

Il nostro staff


  • Antonio Petito
    Affiliato

  • Denise Ruffino
    Collaboratrice

  • Fabio Valentini
    Affiliato

  • Piero Ruffino
    Affiliato
Via A.Gramsci, 43 42124 Reggio Nell'Emilia (RE)
Zona: Reggio Emilia e provincia
Mostra su mappa
Orari: Dal lunedì al venerdì dalle ore 9 alle ore 13 e dalle ore 15 alle ore 20. Sabato su appuntamento
Affiliato
Tecnoindustriale Srl
Via A.Gramsci, 43 42124 Reggio Nell'Emilia (RE)

2026 Tecnocasa Franchising S.p.A. - P. IVA 08365160152 - Via Monte Bianco 60/A 20089 Rozzano (MI). Ogni agenzia ha un proprio titolare ed è autonoma. Privacy policy | Policy utilizzo | Cookie policy