Capannone in vendita

Campagnola Emilia, Via Fratelli Rosselli
€ 148.000
300 Mq 300 Mq
2 bagni 2 bagni

Capannone in vendita

Campagnola Emilia, Via Fratelli Rosselli

Descrizione annuncio

CAMPAGNOLA EMILIA-CAPANNONE IN VENDITA-

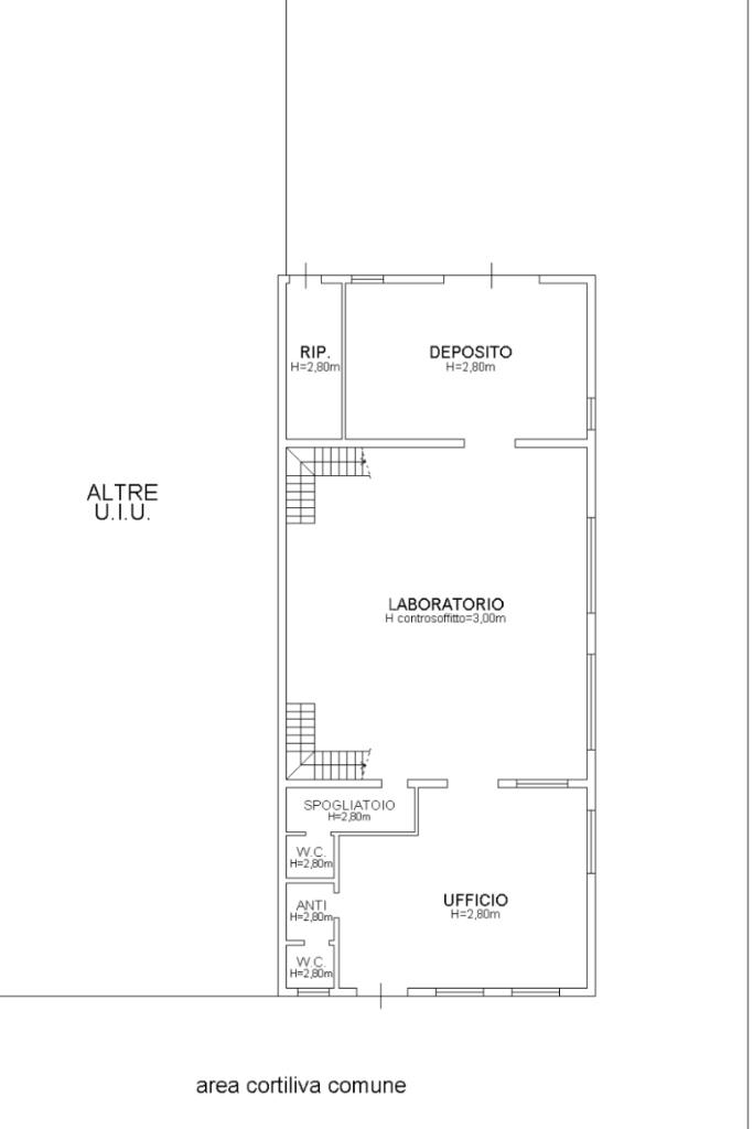
Proponiamo in vendita a Campagnola Emilia un capannone a schiera della superficie complessiva di 230 mq, oggetto di un intervento di ristrutturazione nel 2016.

Il capannone è composto da zona uffici, laboratorioe deposito più due servizi igienici di pertinenza e uno spogliatoio dedicato al personale, garantendo il pieno rispetto delle normative vigenti e il massimo comfort lavorativo.

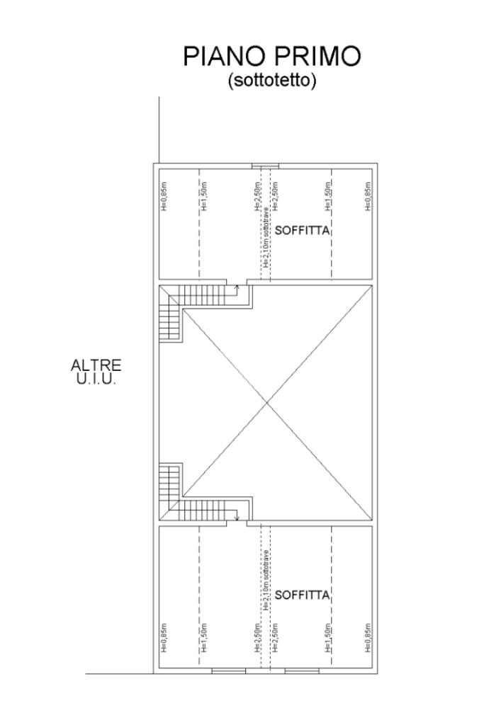
La proprietà si estende ulteriormente al primo piano, dove si trovano due ampie soffitte rispettivamente di 55 mq e 70 mq.

Questi spazi supplementari rappresentano un importante valore aggiunto, offrendo ampie metrature ideali per l'archiviazione di documenti, il magazzinaggio di scorte leggere o come ulteriore area di deposito protetta.

Grazie al recente rinnovo degli ambienti e alla posizione strategica nel tessuto industriale locale, questo immobile rappresenta una soluzione ideale per piccole e medie imprese o artigiani che cercano una sede funzionale, dai costi di gestione contenuti e priva di interventi strutturali immediati.

LIBERO E PRONTO ALL'USO.

PER AVERE MAGGIORI INFORMAZIONI O PRENOTARE LA TUA VISITA PRIVATA CONTATTACI AI SEGUENTI NUMERI 05221965332 o 3516034516 - 340.334.1846

Mostra tutto

Nelle vicinanze

Ricariche auto elettriche Ricariche auto elettriche
Novellara Viale dello Sport | EnelX
2,3 Km
Municipio di Novellara EnelX
2,6 Km
Farmacia Farmacia
Farmacia Nuova
2,8 Km
Supermercati Supermercati
Conad
2,9 Km
Ristoranti Ristoranti
Don Divino Ristorante Pizzeria
2,2 Km
La Conchiglia Ristorante Pizzeria
2,5 Km
Trattoria Cognento
2,7 Km
Ristoranti
2,7 Km
Kamiyama
2,7 Km
Mostra tutto

Caratteristiche

Rif.:
61167330
Piano:
Terra
Condizionamento:
Autonomo
Ascensore:
No
Riscaldamento:
Autonomo
Libero:
Mostra tutto
Prezzo Prezzo
€ 148.000
Rata mutuo Rata mutuo
€ 702 / mese
Spese annue Spese annue
€ 0
Proponi il tuo prezzoProponi il tuo prezzo

Classe Energetica

F
F
F
F
F
F
F
F
F
Anno di costruzione:
1990
Riscaldamento:
Autonomo
Tipo impianto:
A radiatori
Tipo alimentazione:
Metano

Ti interessa visionare l'immobile?

Fissa un appuntamento  Fissa un appuntamento

Richiedi informazioni

Clicca su Leggi per aprire l'informativa
* Questi campi sono obbligatori

Calcola il tuo mutuo

Semplice e senza impegno
Anticipo

( % )
Mutuo

( % )

pochi semplici passi

inserisci i tuoi dati
Questionario completato
Grazie per aver richiesto un appuntamento senza impegno con un nostro Consulente del Credito e Assicurativo.

Hai inserito correttamente tutti i dati necessari e a breve riceverai una e-mail con un link da convalidare per inviare i tuoi dati.
Affiliato
Tecnoindustriale Srl
Via A.Gramsci, 43 42124 Reggio Nell'Emilia (RE)

Il nostro staff


  • Antonio Petito
    Affiliato

  • Denise Ruffino
    Collaboratrice

  • Fabio Valentini
    Affiliato

  • Piero Ruffino
    Affiliato
Via A.Gramsci, 43 42124 Reggio Nell'Emilia (RE)
Zona: Reggio Emilia e provincia
Mostra su mappa
Orari: Dal lunedì al venerdì dalle ore 9 alle ore 13 e dalle ore 15 alle ore 20. Sabato su appuntamento
Affiliato
Tecnoindustriale Srl
Via A.Gramsci, 43 42124 Reggio Nell'Emilia (RE)

2026 Tecnocasa Franchising S.p.A. - P. IVA 08365160152 - Via Monte Bianco 60/A 20089 Rozzano (MI). Ogni agenzia ha un proprio titolare ed è autonoma. Privacy policy | Policy utilizzo | Cookie policy