Capannone in vendita

Luzzara, Str. Villa Superiore - Villa Superiore
€ 3.500.000
5763 Mq 5763 Mq
5 bagni 5 bagni

Capannone in vendita

Luzzara, Str. Villa Superiore - Villa Superiore

Descrizione annuncio

LUZZARA-

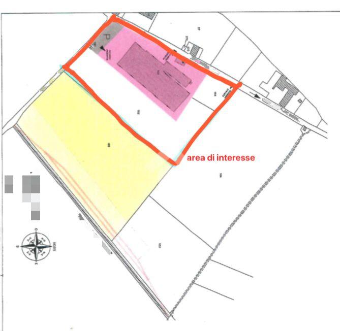
Proponiamo complesso industriale fronte strada composto da capannoni, uffici e servizi, area cortiliva e area edificabile.

I capannoni sono di 5763 mq totali con uffici e servizi di pertinenza. Grazie all'altezza sottotrave di 7,40 metri il capannone è adatto a diverse tipologie di attività industriali.

Inoltre l'immobile gode di area edificabile (fondiaria) di 18. 500mq con potenzialità edificatoria al 50%.

Il capannone gode di area cortiliva esclusiva per un totale di 6554mq con doppio accesso carrabile e parcheggio privato di pertinenza.

Infine come corpo staccato dai capannoni vi è una palazzina di 222 mq che si sviluppa su due piani, adibita attualmente ad uffici.

Composta da 4 locali principali al piano terra con bagno e antibagno più altri due locali al primo piano.

LIBERO E PRONTO ALL'USO.

PER AVERE MAGGIORI INFORMAZIONI O PRENOTARE LA TUA VISITA PRIVATA CONTATTACI AI SEGUENTI NUMERI 3457186940 o 05221965332.

Mostra tutto

Nelle vicinanze

Trasporto pubblico Trasporto pubblico
Luzzara
Luzzara
260 m
Codisotto
Codisotto
3,0 Km
Ricariche auto elettriche Ricariche auto elettriche
Enel X Municipio di Luzzara
740 m
Mostra tutto

Caratteristiche

Rif.:
60990348
Piano:
Terra
Posti auto:
15
Condizionamento:
Autonomo
Ascensore:
No
Riscaldamento:
Autonomo
Mostra tutto
Prezzo Prezzo
€ 3.500.000
Rata mutuo Rata mutuo
€ 16.613 / mese
Spese annue Spese annue
€ 0
Proponi il tuo prezzoProponi il tuo prezzo

Classe Energetica

G
G
G
G
G
G
G
G
G
Anno di costruzione:
2006
Riscaldamento:
Autonomo
Tipo impianto:
A radiatori
Tipo alimentazione:
Metano

Ti interessa visionare l'immobile?

Fissa un appuntamento  Fissa un appuntamento

Richiedi informazioni

Clicca su Leggi per aprire l'informativa
* Questi campi sono obbligatori

Calcola il tuo mutuo

Semplice e senza impegno
Anticipo

( % )
Mutuo

( % )

pochi semplici passi

inserisci i tuoi dati
Questionario completato
Grazie per aver richiesto un appuntamento senza impegno con un nostro Consulente del Credito e Assicurativo.

Hai inserito correttamente tutti i dati necessari e a breve riceverai una e-mail con un link da convalidare per inviare i tuoi dati.
Affiliato
Tecnoindustriale Srl
Via A.Gramsci, 43 42124 Reggio Nell'Emilia (RE)

Il nostro staff


  • Antonio Petito
    Affiliato

  • Denise Ruffino
    Collaboratrice

  • Fabio Valentini
    Affiliato

  • Piero Ruffino
    Affiliato
Via A.Gramsci, 43 42124 Reggio Nell'Emilia (RE)
Zona: Reggio Emilia e provincia
Mostra su mappa
Orari: Dal lunedì al venerdì dalle ore 9 alle ore 13 e dalle ore 15 alle ore 20. Sabato su appuntamento
Affiliato
Tecnoindustriale Srl
Via A.Gramsci, 43 42124 Reggio Nell'Emilia (RE)

2026 Tecnocasa Franchising S.p.A. - P. IVA 08365160152 - Via Monte Bianco 60/A 20089 Rozzano (MI). Ogni agenzia ha un proprio titolare ed è autonoma. Privacy policy | Policy utilizzo | Cookie policy