Attività in vendita

Reggio Nell'Emilia, Via Federico Confalonieri - Pieve Modolena
€ 280.000
195 Mq 195 Mq
3 bagni 3 bagni

Attività in vendita

Reggio Nell'Emilia, Via Federico Confalonieri - Pieve Modolena

Descrizione annuncio

REGGIO EMILIA - PIEVE - ATTIVITA' IN VENDITA

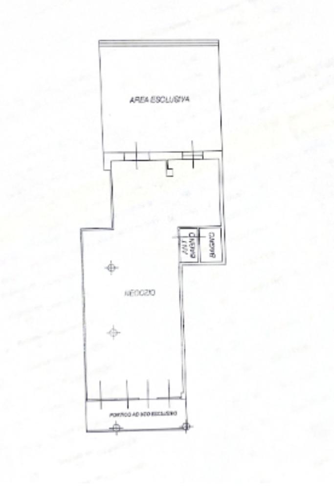
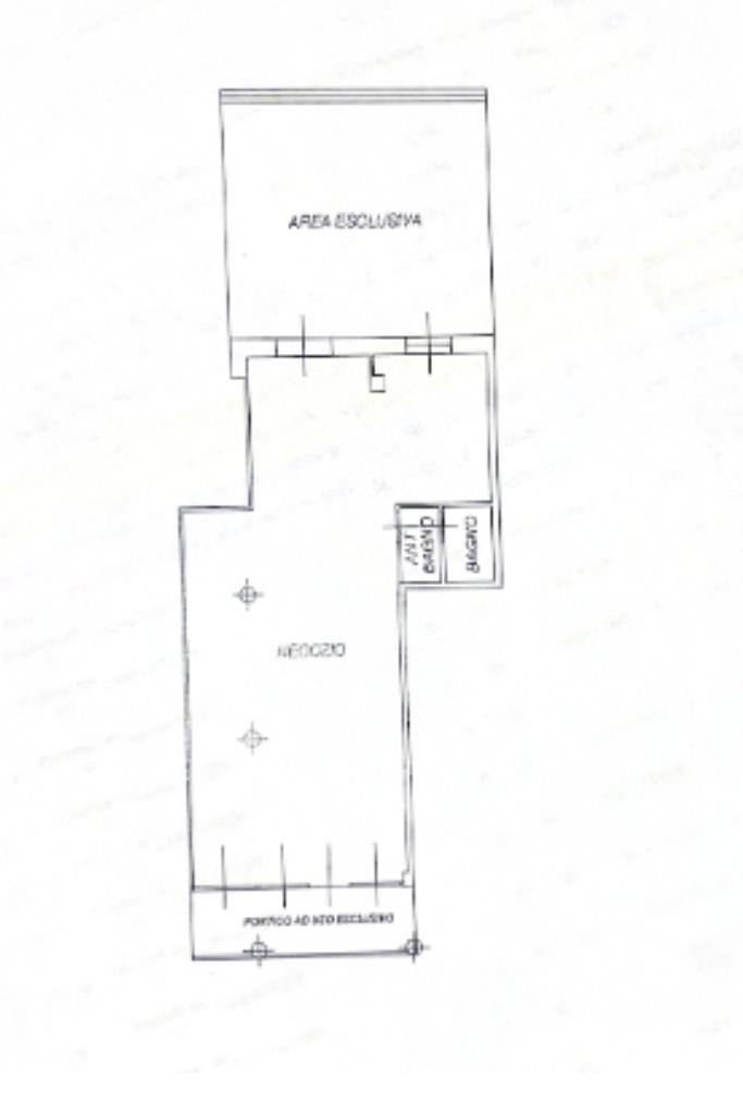
Si propone in vendita un’attività di caffetteria e gelateria storica, ben consolidata nel territorio, situata in una posizione di forte passaggio, nelle vicinanze di direzionali e altre attività commerciali.

Nata come gelateria artigianale, l’attività si è progressivamente sviluppata anche nel settore della caffetteria e dei pranzi veloci, riuscendo così a soddisfare un’ampia clientela.

Il locale, di circa 190 mq totali, è completo di laboratorio attrezzato, bancone, sala interna per la consumazione, magazzino, ufficio, bagno clienti a norma per persone con disabilità e due servizi per il personale.

All’esterno, un portico e un cortile privato di circa 100 mq consentono di sfruttare al meglio gli spazi durante la stagione estiva.

Tutti gli impianti sono autonomi, le spese condominiali contenute e la zona dispone di comodo parcheggio pubblico.

Un’occasione ideale per chi desidera investire in un’attività solida, ben avviata e con interessanti prospettive di crescita.

LIBERO E PRONTO ALL'USO.

PER AVERE MAGGIORI INFORMAZIONI O PRENOTARE LA TUA VISITA PRIVATA CONTATTACI AI SEGUENTI NUMERI 05221965332 o 3516034513.

Mostra tutto

Nelle vicinanze

Trasporto pubblico Trasporto pubblico
Reggio Emilia Santo Stefano
Reggio Emilia Santo Stefano
2,8 Km
Pieve Haiti
Pieve Haiti
340 m
Via Maroncelli
Via Maroncelli
840 m
Reggio all’Angelo
Reggio all’Angelo
2,0 Km
Ricariche auto elettriche Ricariche auto elettriche
Enel X Unieuro
650 m
Colonnina Enel Energia 22kW
1,8 Km
Nissan Gruppo Autotorino SpA | EnelX
2,5 Km
Eneldrive Centro Commerciale Le Querce
2,6 Km
Eneldrive Viale Trento Trieste
2,8 Km
Scuole Scuole
Scuola primaria statale Giuseppe Verdi (Pieve 1)
70 m
Istituto comprensivo J. F. Kennedy
1,1 Km
Scuola dell'infanzia S. Pio X
2,0 Km
Scuola primaria e scuola dell'infanzia statali "Dante Alighieri"
2,2 Km
Liceo Scientifico Statale "Aldo Moro"
2,5 Km
Farmacia Farmacia
Farmacia comunale Roncina
2,2 Km
Parafarmacia
2,6 Km
Farmacia Gardenia
2,9 Km
Farmacia Comunale Gattaglio
3,0 Km
Supermercati Supermercati
Eurospin
560 m
Supermercato Eurospin
570 m
Conad Pieve
930 m
Il Gigante
1,1 Km
Coop
1,2 Km
Negozi Negozi
Dolce Vita Store
40 m
Sigma
100 m
Forno pasticceria F.lli Chiossi
100 m
Forno Castagnoli
2,3 Km
Le Delizie dell' orto
2,4 Km
Bar Bar
Sosta Caffè
1,1 Km
Bar
1,6 Km
Caribe Club
1,9 Km
Hausbandt Caffe
2,4 Km
Bar Glennys
2,6 Km
Ristoranti Ristoranti
Taverna Mykonos
560 m
America Graffiti Restaurant
620 m
Ristoranti
700 m
Rosa dei Venti
1,1 Km
Mensa scolastica Pieve 2
1,1 Km
Mostra tutto

Caratteristiche

Rif.:
61135478
Piano:
Terra con giardino
Posti auto:
3
Condizionamento:
Autonomo
Ascensore:
No
Riscaldamento:
Autonomo
Mostra tutto
Prezzo Prezzo
€ 280.000
Rata mutuo Rata mutuo
€ 1.329 / mese
Spese annue Spese annue
€ 0
Proponi il tuo prezzoProponi il tuo prezzo

Classe Energetica

E
E
E
E
E
E
E
E
E
Anno di costruzione:
2014
Riscaldamento:
Autonomo
Tipo impianto:
A radiatori
Tipo alimentazione:
Metano

Ti interessa visionare l'immobile?

Fissa un appuntamento  Fissa un appuntamento

Richiedi informazioni

Clicca su Leggi per aprire l'informativa
* Questi campi sono obbligatori

Calcola il tuo mutuo

Semplice e senza impegno
Anticipo

( % )
Mutuo

( % )

pochi semplici passi

inserisci i tuoi dati
Questionario completato
Grazie per aver richiesto un appuntamento senza impegno con un nostro Consulente del Credito e Assicurativo.

Hai inserito correttamente tutti i dati necessari e a breve riceverai una e-mail con un link da convalidare per inviare i tuoi dati.
Affiliato
Tecnoindustriale Srl
Via A.Gramsci, 43 42124 Reggio Nell'Emilia (RE)

Il nostro staff


  • Antonio Petito
    Affiliato

  • Denise Ruffino
    Collaboratrice

  • Fabio Valentini
    Affiliato

  • Piero Ruffino
    Affiliato
Via A.Gramsci, 43 42124 Reggio Nell'Emilia (RE)
Zona: Reggio Emilia e provincia
Mostra su mappa
Orari: Dal lunedì al venerdì dalle ore 9 alle ore 13 e dalle ore 15 alle ore 20. Sabato su appuntamento
Affiliato
Tecnoindustriale Srl
Via A.Gramsci, 43 42124 Reggio Nell'Emilia (RE)

2026 Tecnocasa Franchising S.p.A. - P. IVA 08365160152 - Via Monte Bianco 60/A 20089 Rozzano (MI). Ogni agenzia ha un proprio titolare ed è autonoma. Privacy policy | Policy utilizzo | Cookie policy