Capannone in affitto

Reggio Nell'Emilia, Via Gramsci - Mancasale
€ 1.000 / mese
300 Mq 300 Mq
2 bagni 2 bagni

Capannone in affitto

Reggio Nell'Emilia, Via Gramsci - Mancasale

Descrizione annuncio

REGGIO EMILIA-MANCASALE-

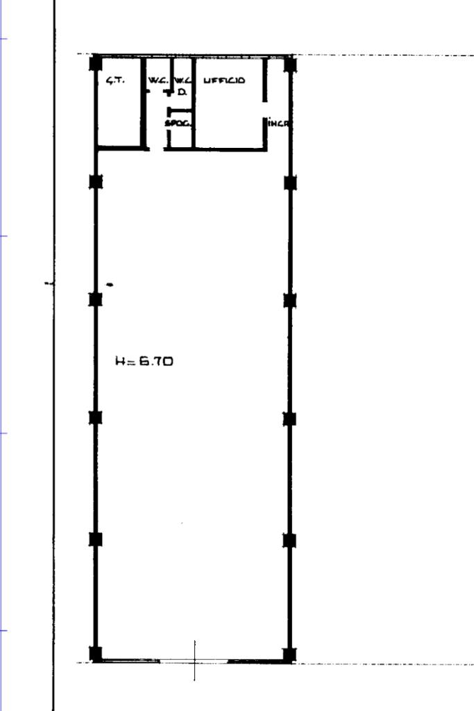
Proponiamo in affitto un capannone industriale di 300 mq situato all’interno della zona industriale di Mancasale, contesto strategico e ben collegato alle principali vie di comunicazione.

Il capannone gode di un cortile condiviso, comodo per la movimentazione delle merci.

L’immobile presenta una buona altezza interna, con 6,70 metri sotto trave, ideale per attività di stoccaggio.

È dotato di un ampio portone carrabile che facilita le operazioni di carico e scarico.

Completano la proprietà due locali ad uso ufficio, dotati di ingresso indipendente e servizi igienici dedicati.

LIBERO E PRONTO ALL'USO.

PER AVERE MAGGIORI INFORMAZIONI O PRENOTARE LA TUA VISITA PRIVATA CONTATTACI AI SEGUENTI NUMERI 05221965332 o 3457186940.
Mostra tutto

Nelle vicinanze

Trasporto pubblico Trasporto pubblico
Reggio Emilia AV Mediopadana
Reggio Emilia AV Mediopadana
870 m
Reggio Mediopadana
Reggio Mediopadana
960 m
Trasporto pubblico
430 m
Parcheggio Stadio
Parcheggio Stadio
770 m
Reggio Stadio
Reggio Stadio
390 m
Ricariche auto elettriche Ricariche auto elettriche
LIDL Reggio Emilia Gramsci
670 m
EnelX EVA+ I Petali - MAPEI Stadium
690 m
Eneldrive Centro Commerciale l'Ariosto
770 m
Eneldrive Business Park
1,9 Km
Eneldrive Parcheggio Piazzale Europa
2,2 Km
Scuole Scuole
Scuola primaria statale Balletti - Mancasale
650 m
Scuola primaria statale "Vasco Agosti"
1,1 Km
Scuola dell'infanzia comunale "Girotondo"
1,1 Km
ITC BUS Blaise Pascal
1,6 Km
Liceo di Scienze sociali Matilde di Canossa
1,6 Km
Farmacia Farmacia
Farmacia Via Gramsci
510 m
Parafarmacia E' Qui
670 m
Farmacia Serri
810 m
Farmacia San Prospero
1,3 Km
Farmacia Comunale Santa Croce
1,5 Km
Supermercati Supermercati
Lidl
660 m
Ipercoop
860 m
Conad Le Vele
1,5 Km
ECU
2,2 Km
Eurospar
2,2 Km
Negozi Negozi
Emporio Roberto Taddei
520 m
Calzedonia
530 m
Pull & Bear
530 m
Tezenis
530 m
Obaïbi e Okaïdi
580 m
Bar Bar
Bar
1,0 Km
Circolo Tunnel "Bombon3ra"
1,1 Km
Chionso Cafè
1,2 Km
Bar GSI
1,8 Km
Italghisa
1,9 Km
Ristoranti Ristoranti
Puro Blanco
120 m
Ikki Japanese Restaurant
330 m
Villa Dome
360 m
Tourlè
390 m
Bancia
530 m
Mostra tutto

Caratteristiche

Rif.:
61129346
Piano:
Terra
Posti auto:
3
Condizionamento:
Assente
Ascensore:
No
Riscaldamento:
Assente
Mostra tutto
Prezzo Prezzo
€ 1.000 / mese
Spese annue Spese annue
€ 0

Classe Energetica

G
G
G
G
G
G
G
G
G
Anno di costruzione:
1970
Riscaldamento:
Assente

Ti interessa visionare l'immobile?

Fissa un appuntamento  Fissa un appuntamento

Richiedi informazioni

* Questi campi sono obbligatori
Affiliato
Tecnoindustriale Srl
Via A.Gramsci, 43 42124 Reggio Nell'Emilia (RE)

Il nostro staff


  • Antonio Petito
    Affiliato

  • Denise Ruffino
    Collaboratrice

  • Fabio Valentini
    Affiliato

  • Piero Ruffino
    Affiliato
Via A.Gramsci, 43 42124 Reggio Nell'Emilia (RE)
Zona: Reggio Emilia e provincia
Mostra su mappa
Orari: Dal lunedì al venerdì dalle ore 9 alle ore 13 e dalle ore 15 alle ore 20. Sabato su appuntamento
Affiliato
Tecnoindustriale Srl
Via A.Gramsci, 43 42124 Reggio Nell'Emilia (RE)

2025 Tecnocasa Franchising S.p.A. - P. IVA 08365160152 - Via Monte Bianco 60/A 20089 Rozzano (MI). Ogni agenzia ha un proprio titolare ed è autonoma. Privacy policy | Policy utilizzo | Cookie policy