Capannone in vendita

Reggio Nell'Emilia, Via Cesare Pervilli - Mancasale
€ 440.000
1041 Mq 1041 Mq
4 bagni 4 bagni

Capannone in vendita

Reggio Nell'Emilia, Via Cesare Pervilli - Mancasale

Descrizione annuncio

REGGIO EMILIA-MANCASALE-

Proponiamo in vendita un interessante complesso immobiliare situato nella zona industriale di Mancasale, a Reggio Emilia.

La proprietà si compone di un ampio capannone di 800 mq, dotato di ufficio, spogliatoio con due servizi igienici e docce, e un'area cortiliva per le operazioni di carico e scarico.

Questo spazio si presta idealmente ad attività industriali e commerciali, garantendo massima funzionalità e praticità.

A completare la proposta, sono inclusi due appartamenti già a reddito, ideali per chi cerca un investimento.

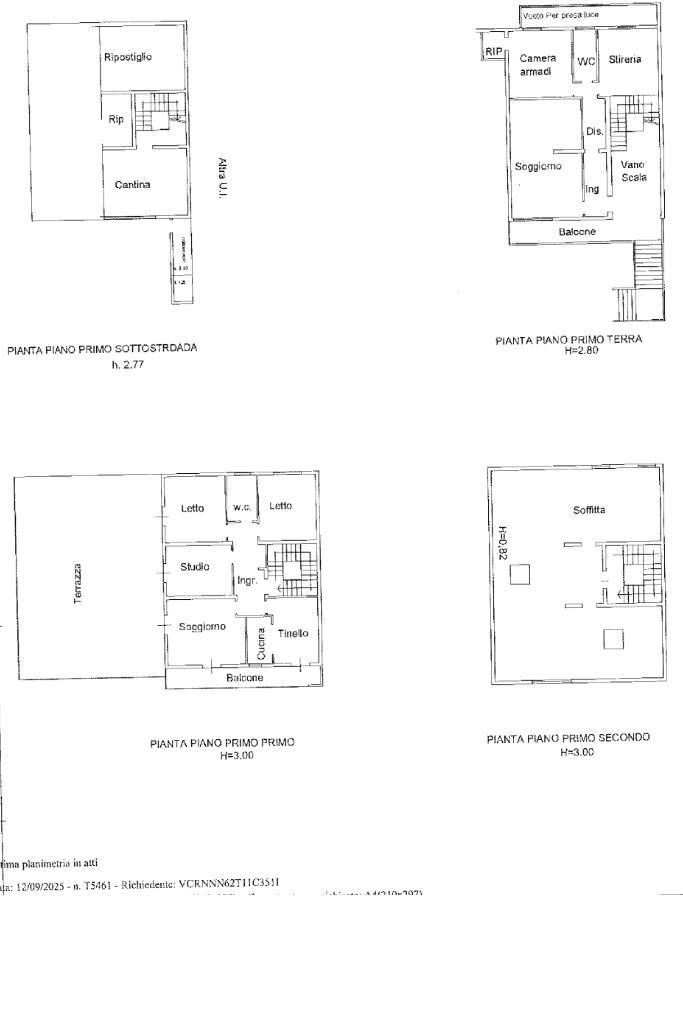
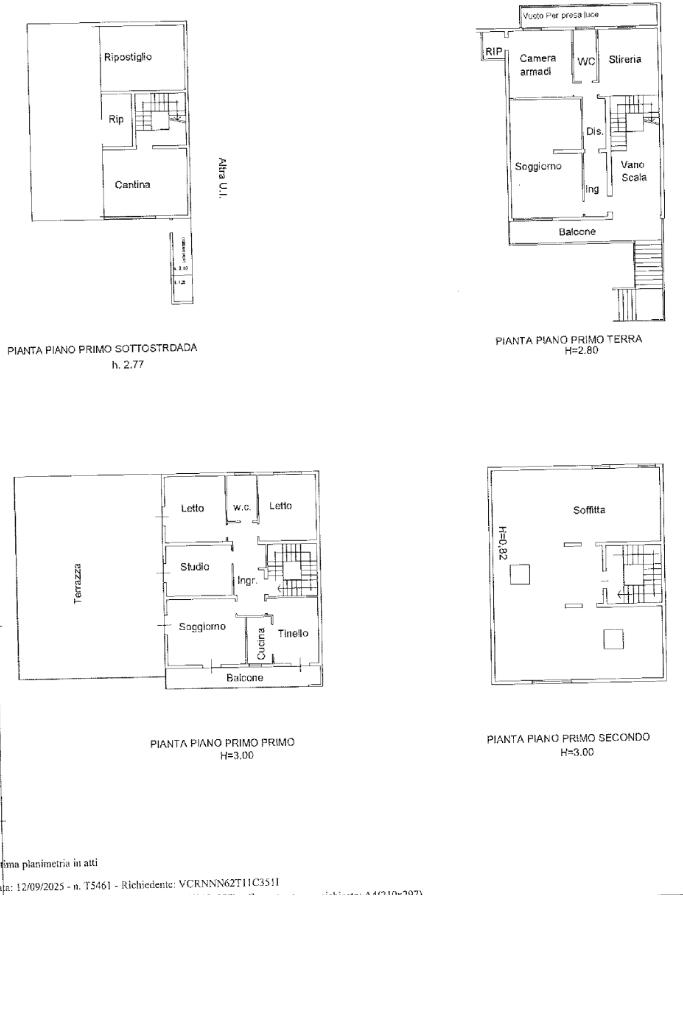
Il primo appartamento, situato al piano terra, misura 80 mq e offre un soggiorno con cucina open space, due camere da letto e un bagno.

Al primo piano, un ulteriore appartamento di 80 mq, ben disposto, comprende un soggiorno, una cucina, tre camere da letto, un bagno, un balcone e un terrazzo.

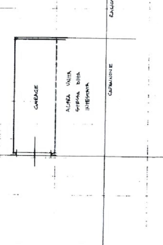
La proprietà è arricchita da una soffitta spaziosa, una cantina al piano interrato e un garage al piano seminterrato, che completano l'offerta con ulteriori spazi utili per il deposito o il parcheggio.

Questa soluzione rappresenta un'opportunità ideale per chi cerca una combinazione di spazi industriali e residenziali in una zona ben servita e strategica, a pochi minuti dalle principali vie di comunicazione.

LIBERO E PRONTO ALL'USO.

PER AVERE MAGGIORI INFORMAZIONI O PRENOTARE LA TUA VISITA PRIVATA CONTATTACI AI SEGUENTI NUMERI 05221965332 o 3457186940.

Mostra tutto

Nelle vicinanze

Trasporto pubblico Trasporto pubblico
Reggio Mediopadana
Reggio Mediopadana
1,8 Km
Reggio Emilia AV Mediopadana
Reggio Emilia AV Mediopadana
1,8 Km
Via Raffaello 24
Via Raffaello 24
710 m
Trasporto pubblico
770 m
Pratofontana
Pratofontana
1,8 Km
Ricariche auto elettriche Ricariche auto elettriche
Eneldrive Centro Commerciale l'Ariosto
2,6 Km
EnelX EVA+ I Petali - MAPEI Stadium
2,8 Km
LIDL Reggio Emilia Gramsci
2,8 Km
Scuole Scuole
Scuola primaria statale Balletti - Mancasale
2,3 Km
Scuola primaria monsignor Canossini
2,4 Km
Scuola dell'infanzia comunale "Girotondo"
2,8 Km
Scuola primaria statale "Vasco Agosti"
2,9 Km
Farmacia Farmacia
Farmacia Via Gramsci
2,6 Km
Farmacia Serri
2,7 Km
Parafarmacia E' Qui
2,8 Km
Farmacia Comunale Bagnolo
3,0 Km
Supermercati Supermercati
Ipercoop
2,6 Km
Lidl
2,8 Km
DIMEGLIO
3,0 Km
Negozi Negozi
CONAD CITY
2,3 Km
Original Marines
2,6 Km
Intimissimi
2,6 Km
Motivi
2,7 Km
Pull & Bear
2,7 Km
Bar Bar
Italghisa
2,8 Km
Ristoranti Ristoranti
Mensa CIR
430 m
Palato ducale
690 m
Ristorante Pizzeria Jolly Di Gurgone
1,3 Km
Ristoranti
1,3 Km
Camelot Bistrot
1,5 Km
Mostra tutto

Caratteristiche

Rif.:
61117263
Piano:
Terra
Box:
1
Posti auto:
5
Balconi:
1
Condizionamento:
Autonomo
Mostra tutto
Prezzo Prezzo
€ 440.000
Rata mutuo Rata mutuo
€ 2.088 / mese
Spese annue Spese annue
€ 0
Proponi il tuo prezzoProponi il tuo prezzo

Classe Energetica

G
G
G
G
G
G
G
G
G
Anno di costruzione:
1970
Riscaldamento:
Autonomo
Tipo impianto:
A radiatori
Tipo alimentazione:
Metano

Ti interessa visionare l'immobile?

Fissa un appuntamento  Fissa un appuntamento

Richiedi informazioni

Clicca su Leggi per aprire l'informativa
* Questi campi sono obbligatori

Calcola il tuo mutuo

Semplice e senza impegno
Anticipo

( % )
Mutuo

( % )

pochi semplici passi

inserisci i tuoi dati
Questionario completato
Grazie per aver richiesto un appuntamento senza impegno con un nostro Consulente del Credito e Assicurativo.

Hai inserito correttamente tutti i dati necessari e a breve riceverai una e-mail con un link da convalidare per inviare i tuoi dati.
Affiliato
Tecnoindustriale Srl
Via A.Gramsci, 43 42124 Reggio Nell'Emilia (RE)

Il nostro staff


  • Antonio Petito
    Affiliato

  • Denise Ruffino
    Collaboratrice

  • Fabio Valentini
    Affiliato

  • Piero Ruffino
    Affiliato
Via A.Gramsci, 43 42124 Reggio Nell'Emilia (RE)
Zona: Reggio Emilia e provincia
Mostra su mappa
Orari: Dal lunedì al venerdì dalle ore 9 alle ore 13 e dalle ore 15 alle ore 20. Sabato su appuntamento
Affiliato
Tecnoindustriale Srl
Via A.Gramsci, 43 42124 Reggio Nell'Emilia (RE)

2026 Tecnocasa Franchising S.p.A. - P. IVA 08365160152 - Via Monte Bianco 60/A 20089 Rozzano (MI). Ogni agenzia ha un proprio titolare ed è autonoma. Privacy policy | Policy utilizzo | Cookie policy