Capannone in vendita

Reggio Nell'Emilia, Via Gramsci - Mancasale
€ 690.000
1050 Mq 1050 Mq
3 bagni 3 bagni

Capannone in vendita

Reggio Nell'Emilia, Via Gramsci - Mancasale

Descrizione annuncio

CAPANNONE INDIPENDENTE IN VENDITA-MANCASALE-

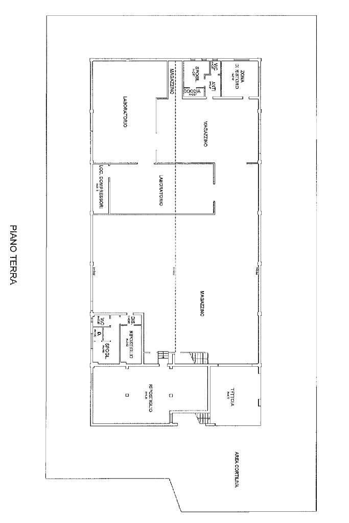
Proponiamo in vendita a Mancasale capannone indipendente di circa 1.050 mq complessivi, dotato di area cortiliva esclusiva che consente comode operazioni di carico/scarico e movimentazione mezzi.

L’immobile si sviluppa con un’ampia zona produttiva con altezza sotto trave di 6,50 m, ideale per attività artigianali, industriali o logistiche.

All’interno sono presenti spogliatoi e servizi dedicati ai dipendenti, oltre a una zona ristoro a supporto del personale.

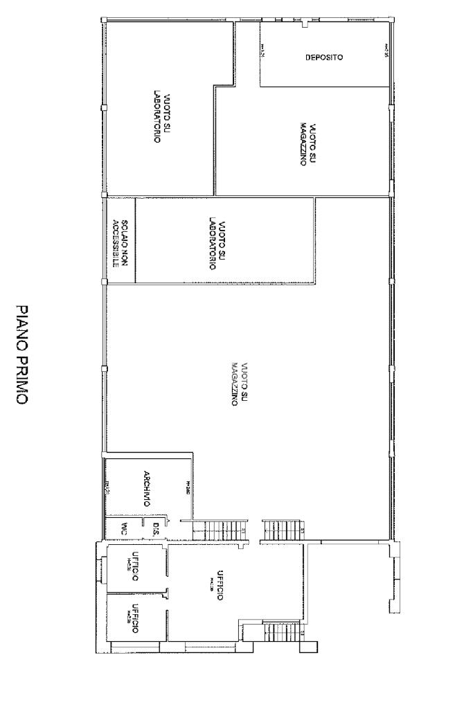
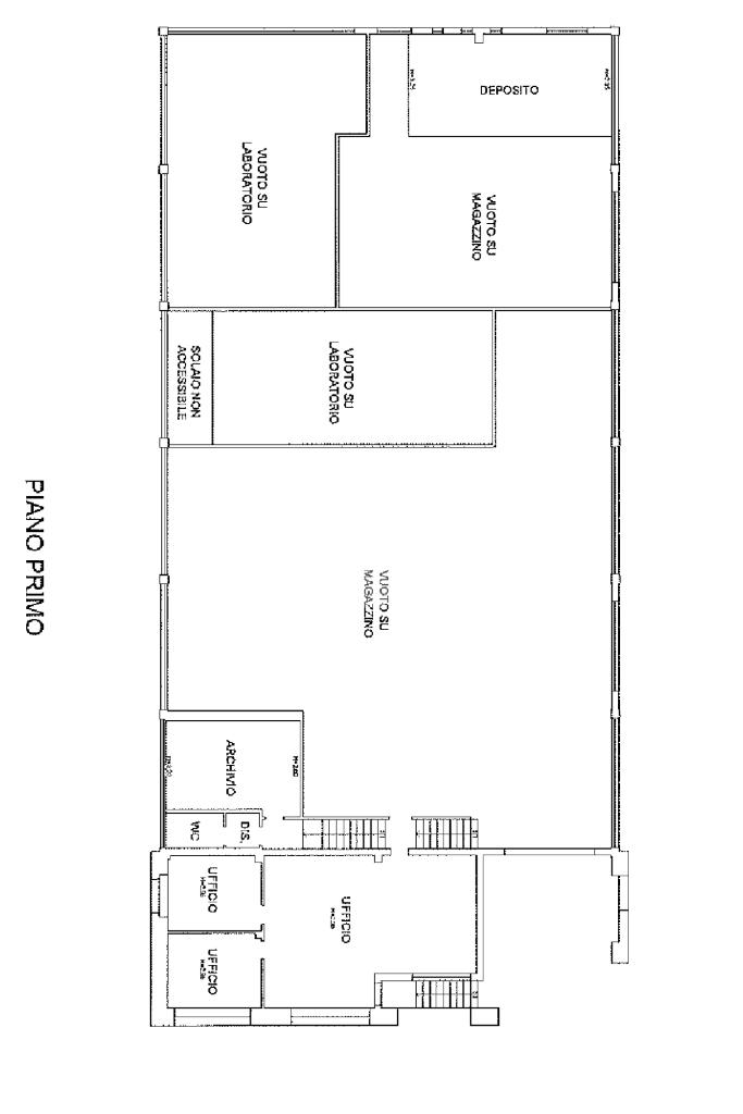
La parte direzionale comprende uffici sia al piano terra che al primo piano, recentemente ristrutturati, con ambienti curati e pronti all’uso, adatti ad accogliere area amministrativa, commerciale o tecnica.

Soluzione completa e ben organizzata, inserita in contesto produttivo strategico, ideale per aziende che ricercano spazi funzionali con area esterna privata e uffici già in ottimo stato manutentivo.

PER AVERE MAGGIORI INFORMAZIONI O PRENOTARE LA TUA VISITA PRIVATA CONTATTACI AI SEGUENTI NUMERI 05221965332 o 351 604 4513.

Mostra tutto

Nelle vicinanze

Trasporto pubblico Trasporto pubblico
Reggio Emilia AV Mediopadana
Reggio Emilia AV Mediopadana
860 m
Reggio Mediopadana
Reggio Mediopadana
950 m
Trasporto pubblico
440 m
Parcheggio Stadio
Parcheggio Stadio
780 m
Reggio Stadio
Reggio Stadio
400 m
Ricariche auto elettriche Ricariche auto elettriche
LIDL Reggio Emilia Gramsci
680 m
EnelX EVA+ I Petali - MAPEI Stadium
700 m
Eneldrive Centro Commerciale l'Ariosto
780 m
Eneldrive Business Park
1,9 Km
Eneldrive Viale Regina Elena
2,2 Km
Scuole Scuole
Scuola primaria statale Balletti - Mancasale
650 m
Scuola primaria statale "Vasco Agosti"
1,1 Km
Scuola dell'infanzia comunale "Girotondo"
1,1 Km
ITC BUS Blaise Pascal
1,6 Km
Liceo di Scienze sociali Matilde di Canossa
1,6 Km
Farmacia Farmacia
Farmacia Via Gramsci
520 m
Parafarmacia E' Qui
680 m
Farmacia Serri
820 m
Farmacia San Prospero
1,3 Km
Farmacia Comunale Santa Croce
1,6 Km
Supermercati Supermercati
Lidl
670 m
Ipercoop
870 m
Conad Le Vele
1,5 Km
ECU
2,2 Km
Eurospar
2,2 Km
Negozi Negozi
Emporio Roberto Taddei
530 m
Calzedonia
540 m
Pull & Bear
540 m
Tezenis
540 m
Obaïbi e Okaïdi
590 m
Bar Bar
Bar
1,0 Km
Circolo Tunnel "Bombon3ra"
1,1 Km
Chionso Cafè
1,2 Km
Bar GSI
1,9 Km
Italghisa
1,9 Km
Ristoranti Ristoranti
Puro Blanco
110 m
Ikki Japanese Restaurant
340 m
Villa Dome
370 m
Tourlè
380 m
Bancia
540 m
Mostra tutto

Caratteristiche

Rif.:
61181522
Piano:
Terra
Posti auto:
10
Condizionamento:
Autonomo
Ascensore:
No
Riscaldamento:
Autonomo
Mostra tutto
Prezzo Prezzo
€ 690.000
Rata mutuo Rata mutuo
€ 3.275 / mese
Spese annue Spese annue
€ 0
Proponi il tuo prezzoProponi il tuo prezzo

Classe Energetica

F
F
F
F
F
F
F
F
F
Anno di costruzione:
1987
Riscaldamento:
Autonomo
Tipo impianto:
A radiatori
Tipo alimentazione:
Metano

Ti interessa visionare l'immobile?

Fissa un appuntamento  Fissa un appuntamento

Richiedi informazioni

Clicca su Leggi per aprire l'informativa
* Questi campi sono obbligatori

Calcola il tuo mutuo

Semplice e senza impegno
Anticipo

( % )
Mutuo

( % )

pochi semplici passi

inserisci i tuoi dati
Questionario completato
Grazie per aver richiesto un appuntamento senza impegno con un nostro Consulente del Credito e Assicurativo.

Hai inserito correttamente tutti i dati necessari e a breve riceverai una e-mail con un link da convalidare per inviare i tuoi dati.
Affiliato
Tecnoindustriale Srl
Via A.Gramsci, 43 42124 Reggio Nell'Emilia (RE)

Il nostro staff


  • Antonio Petito
    Affiliato

  • Denise Ruffino
    Collaboratrice

  • Fabio Valentini
    Affiliato

  • Piero Ruffino
    Affiliato
Via A.Gramsci, 43 42124 Reggio Nell'Emilia (RE)
Zona: Reggio Emilia e provincia
Mostra su mappa
Orari: Dal lunedì al venerdì dalle ore 9 alle ore 13 e dalle ore 15 alle ore 20. Sabato su appuntamento
Affiliato
Tecnoindustriale Srl
Via A.Gramsci, 43 42124 Reggio Nell'Emilia (RE)

2026 Tecnocasa Franchising S.p.A. - P. IVA 08365160152 - Via Monte Bianco 60/A 20089 Rozzano (MI). Ogni agenzia ha un proprio titolare ed è autonoma. Privacy policy | Policy utilizzo | Cookie policy