Capannone in vendita

Reggio Nell'Emilia, Via raffello - Mancasale
€ 210.000
305 Mq 305 Mq
1 bagno 1 bagno

Capannone in vendita

Reggio Nell'Emilia, Via raffello - Mancasale

Descrizione annuncio

REGGIO EMILIA-MANCASALE-

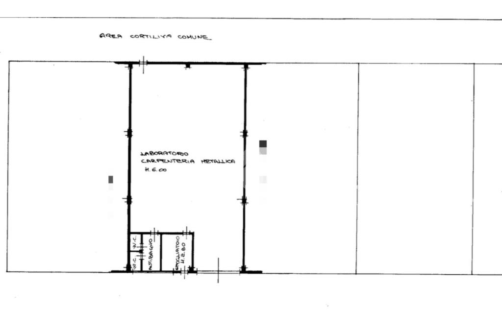
Proponiamo in vendita capannone a schiera nella zona industriale di Mancasale, in posizione strategica e comoda all'autostrada.

L’immobile dispone di un’altezza sotto trave di 6 metri, caratteristica che lo rende particolarmente adatto ad attività produttive, artigianali o di deposito.

Il capannone gode di un’area cortiliva esclusiva in comune, ideale per le operazioni di carico e scarico.

Internamente è presente un ufficio, oltre a un servizio igienico di pertinenza.

LIBERO E PRONTO ALL'USO.

PER AVERE MAGGIORI INFORMAZIONI O PRENOTARE LA TUA VISITA PRIVATA CONTATTACI AI SEGUENTI NUMERI 05221965332 o 351 603 4513.

Mostra tutto

Nelle vicinanze

Trasporto pubblico Trasporto pubblico
Reggio Mediopadana
Reggio Mediopadana
850 m
Reggio Emilia AV Mediopadana
Reggio Emilia AV Mediopadana
870 m
Incrocio via Di Vittorio
Incrocio via Di Vittorio
50 m
Via Majorana
Via Majorana
190 m
Reggio Stadio
Reggio Stadio
1,6 Km
Ricariche auto elettriche Ricariche auto elettriche
EnelX EVA+ I Petali - MAPEI Stadium
1,8 Km
Eneldrive Centro Commerciale l'Ariosto
1,9 Km
LIDL Reggio Emilia Gramsci
2,0 Km
Scuole Scuole
Scuola primaria statale Balletti - Mancasale
1,3 Km
Scuola dell'infanzia comunale "Girotondo"
2,2 Km
Scuola primaria statale "Vasco Agosti"
2,2 Km
IFOA
2,9 Km
Liceo di Scienze sociali Matilde di Canossa
2,9 Km
Farmacia Farmacia
Farmacia Via Gramsci
1,8 Km
Parafarmacia E' Qui
1,9 Km
Farmacia Serri
2,0 Km
Farmacia San Prospero
2,5 Km
Farmacia Comunale Santa Croce
2,9 Km
Supermercati Supermercati
Lidl
2,0 Km
Ipercoop
2,0 Km
Conad Le Vele
2,8 Km
Negozi Negozi
Pull & Bear
1,7 Km
Tezenis
1,8 Km
Calzedonia
1,8 Km
Cotton & Silk
1,8 Km
Obaïbi e Okaïdi
1,8 Km
Bar Bar
Bar
2,3 Km
Circolo Tunnel "Bombon3ra"
2,4 Km
Chionso Cafè
2,5 Km
Italghisa
2,5 Km
Bar GSI
3,0 Km
Ristoranti Ristoranti
Ristorante Pizzeria Jolly Di Gurgone
320 m
Palato ducale
830 m
Mensa CIR
910 m
Tourlè
930 m
Camelot Bistrot
1,1 Km
Mostra tutto

Caratteristiche

Rif.:
61202153
Piano:
Terra
Condizionamento:
Assente
Ascensore:
No
Riscaldamento:
Assente
Giardino:
Condominiale
Mostra tutto
Prezzo Prezzo
€ 210.000
Rata mutuo Rata mutuo
€ 997 / mese
Spese annue Spese annue
€ 0
Proponi il tuo prezzoProponi il tuo prezzo

Altre caratteristiche

Descrizione dei locali
Bagno Con Finestra

Classe Energetica

G
G
G
G
G
G
G
G
G
Anno di costruzione:
1990
Riscaldamento:
Assente

Ti interessa visionare l'immobile?

Fissa un appuntamento  Fissa un appuntamento

Richiedi informazioni

Clicca su Leggi per aprire l'informativa
* Questi campi sono obbligatori

Calcola il tuo mutuo

Semplice e senza impegno
Anticipo

( % )
Mutuo

( % )

pochi semplici passi

inserisci i tuoi dati
Questionario completato
Grazie per aver richiesto un appuntamento senza impegno con un nostro Consulente del Credito e Assicurativo.

Hai inserito correttamente tutti i dati necessari e a breve riceverai una e-mail con un link da convalidare per inviare i tuoi dati.
Affiliato
Tecnoindustriale Srl
Via A.Gramsci, 43 42124 Reggio Nell'Emilia (RE)

Il nostro staff


  • Antonio Petito
    Affiliato

  • Denise Ruffino
    Collaboratrice

  • Fabio Valentini
    Affiliato

  • Piero Ruffino
    Affiliato
Via A.Gramsci, 43 42124 Reggio Nell'Emilia (RE)
Zona: Reggio Emilia e provincia
Mostra su mappa
Orari: Dal lunedì al venerdì dalle ore 9 alle ore 13 e dalle ore 15 alle ore 20. Sabato su appuntamento
Affiliato
Tecnoindustriale Srl
Via A.Gramsci, 43 42124 Reggio Nell'Emilia (RE)

2026 Tecnocasa Franchising S.p.A. - P. IVA 08365160152 - Via Monte Bianco 60/A 20089 Rozzano (MI). Ogni agenzia ha un proprio titolare ed è autonoma. Privacy policy | Policy utilizzo | Cookie policy