Ufficio in affitto

Reggio Nell'Emilia, Via Dimitrov - Baragalla
€ 1.550 / mese
345 Mq 345 Mq
1 bagno 1 bagno

Ufficio in affitto

Reggio Nell'Emilia, Via Dimitrov - Baragalla

Descrizione annuncio

REGGIO EMILIA-BARAGALLA-

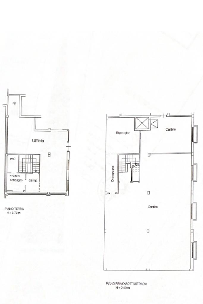
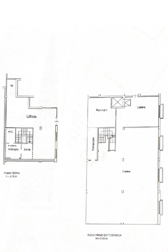
Proponiamo a Baragalla, in una zona di forte passaggio e ben servita, la locazione di un immobile composto da un ufficio al piano terra di circa 88 mq con vetrina su strada e da un ampio magazzino di 257 mq al piano interrato.

L'ufficio si presenta in buone condizioni ed è dotato di bagno con antibagno e impianto di climatizzazione con tre split caldo/freddo.

La posizione, circondata da diverse attività commerciali, rende l'immobile particolarmente interessante per chi cerca visibilità e facilità di accesso, anche grazie alla comoda disponibilità di parcheggi gratuiti nelle immediate vicinanze.

Una soluzione ideale per studi professionali, showroom o attività che necessitano di uno spazio operativo e funzionale con magazzino interno.

LIBERO E PRONTO ALL'USO.

PER AVERE MAGGIORI INFORMAZIONI O PRENOTARE LA TUA VISITA PRIVATA CONTATTACI AI SEGUENTI NUMERI 05221965332 o 3457186940.

Mostra tutto

Nelle vicinanze

Trasporto pubblico Trasporto pubblico
Incrocio via belli
Incrocio via belli
210 m
Incrocio via Gozzi
Incrocio via Gozzi
350 m
Reggio all’Angelo
Reggio all’Angelo
3,0 Km
Ricariche auto elettriche Ricariche auto elettriche
CF3000
1,3 Km
Eneldrive Arcispedale S. Maria Nuova
1,8 Km
Eneldrive Centro Commerciale Le Querce
1,8 Km
Reggio nell'Emilia Roversi | EnelX
2,5 Km
Eneldrive Piazza Vincenzo Gioberti
2,8 Km
Scuole Scuole
Polo scolastico ex Artigianelli
120 m
Scuola d'infanzia e primaria statali "Don Milani"
480 m
Istituto comprensivo A. Ligabue
810 m
ENAIP
840 m
Scuola media C.A. Dalla Chiesa
840 m
Farmacia Farmacia
Farmacia Coviolo
1,0 Km
Farmacia San Pellegrino
1,3 Km
Farmacia Ospedale H24
1,8 Km
Farmacia comunale Roncina
2,0 Km
Farmacia
2,3 Km
Ospedali Ospedali
Casa di cura policlinica Villa Verde
880 m
Azienda ospedaliera Arcispedale Santa Maria Nuova
1,7 Km
Supermercati Supermercati
CONAD
390 m
Coop Canalina
650 m
SIGMA Canalina
940 m
Ipercoop Baragalla
1,1 Km
CONAD SUPERSTORE Le Querce
1,7 Km
Negozi Negozi
CONAD CITY
1,7 Km
ECU
2,5 Km
Forno Rivalta
2,5 Km
Unity Store
2,6 Km
Le Delizie dell' orto
2,6 Km
Bar Bar
Bar
590 m
Palapa
970 m
Bar Prestige
2,0 Km
Bar Glennys
2,2 Km
Baretto
2,3 Km
Ristoranti Ristoranti
Quantum
900 m
Pizzikotto
1,1 Km
Trattoria "A Canali"
1,8 Km
La Pignatta
2,0 Km
Oasi
2,1 Km
Mostra tutto

Caratteristiche

Rif.:
61115237
Piano:
Terra
Posti auto:
5
Condizionamento:
Autonomo
Ascensore:
No
Riscaldamento:
Autonomo
Mostra tutto
Prezzo Prezzo
€ 1.550 / mese
Spese annue Spese annue
€ 2.300

Classe Energetica

E
E
E
E
E
E
E
E
E
Anno di costruzione:
1990
Riscaldamento:
Autonomo
Tipo impianto:
A radiatori
Tipo alimentazione:
Metano

Ti interessa visionare l'immobile?

Fissa un appuntamento  Fissa un appuntamento

Richiedi informazioni

Clicca su Leggi per aprire l'informativa
* Questi campi sono obbligatori
Affiliato
Tecnoindustriale Srl
Via A.Gramsci, 43 42124 Reggio Nell'Emilia (RE)

Il nostro staff


  • Antonio Petito
    Affiliato

  • Denise Ruffino
    Collaboratrice

  • Fabio Valentini
    Affiliato

  • Piero Ruffino
    Affiliato
Via A.Gramsci, 43 42124 Reggio Nell'Emilia (RE)
Zona: Reggio Emilia e provincia
Mostra su mappa
Orari: Dal lunedì al venerdì dalle ore 9 alle ore 13 e dalle ore 15 alle ore 20. Sabato su appuntamento
Affiliato
Tecnoindustriale Srl
Via A.Gramsci, 43 42124 Reggio Nell'Emilia (RE)

2026 Tecnocasa Franchising S.p.A. - P. IVA 08365160152 - Via Monte Bianco 60/A 20089 Rozzano (MI). Ogni agenzia ha un proprio titolare ed è autonoma. Privacy policy | Policy utilizzo | Cookie policy