Ufficio in vendita

Reggio Nell'Emilia, Via Stendhal - Regina Pacis
€ 130.000
150 Mq 150 Mq
2 bagni 2 bagni

Ufficio in vendita

Reggio Nell'Emilia, Via Stendhal - Regina Pacis

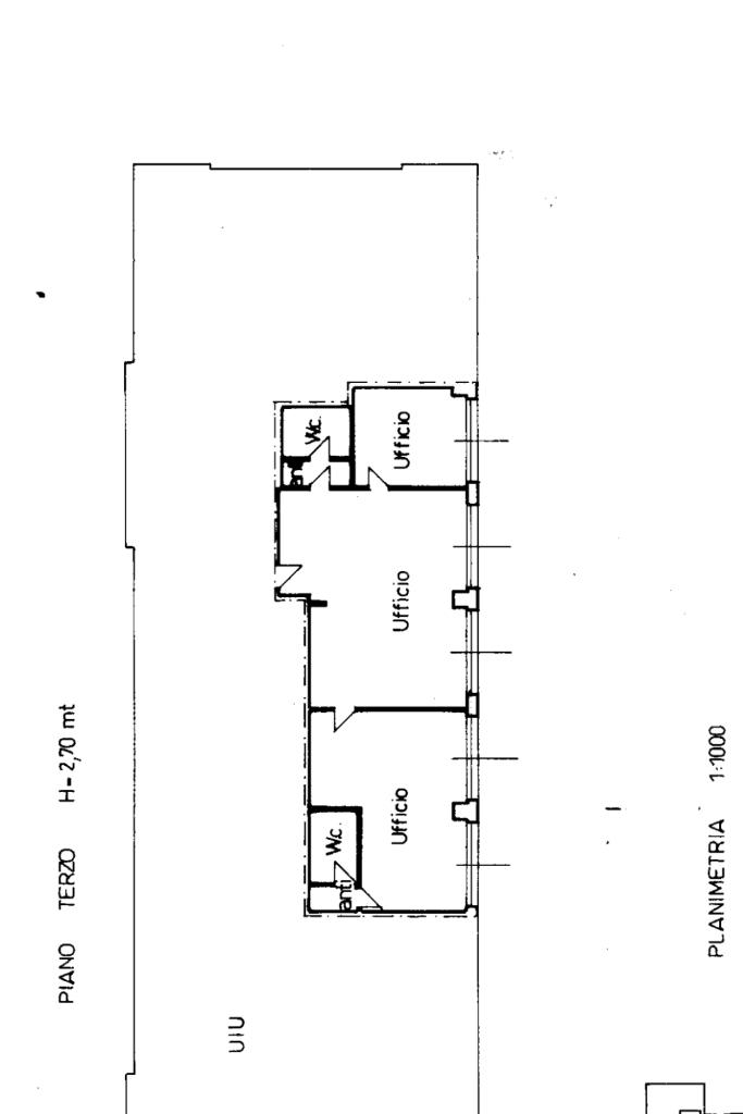
Descrizione annuncio

REGGIO EMILIA-REGINA PACIS- UFFICIO IN VENDITA GIA' A REDDITO-

In zona Regina Pacis, area ben servita e facilmente raggiungibile, proponiamo in vendita un ufficio già a reddito, ideale come investimento.

L’immobile è situato al terzo piano di uno stabile servito da ascensore, inserito in un contesto professionale che ospita diversi studi e uffici.

L’ufficio si presenta in ottimo stato manutentivo ed è composto da tre locali principali, luminosi e spaziosi, ben distribuiti e adatti a molteplici attività professionali.

Completano la proprietà due servizi di pertinenza con antibsagno e doccia.

La soluzione rappresenta un’interessante opportunità per chi è alla ricerca di un investimento sicuro e immediatamente produttivo, in una zona strategica e consolidata.

PER AVERE MAGGIORI INFORMAZIONI O PRENOTARE LA TUA VISITA PRIVATA CONTATTACI AI SEGUENTI NUMERI 05221965332 o 3516034513.

Mostra tutto

Nelle vicinanze

Trasporto pubblico Trasporto pubblico
Reggio Emilia Santo Stefano
Reggio Emilia Santo Stefano
1,8 Km
stazione di Reggio Emilia
stazione di Reggio Emilia
2,9 Km
Quartiere Orologio
Quartiere Orologio
240 m
Incrocio via Aleardi
Incrocio via Aleardi
440 m
Reggio all’Angelo
Reggio all’Angelo
1,3 Km
Ricariche auto elettriche Ricariche auto elettriche
Eneldrive Centro Commerciale Le Querce
190 m
Eneldrive Piazza Vincenzo Gioberti
1,6 Km
Colonnina Enel Energia 22kW
1,7 Km
Reggio nell'Emilia Roversi | EnelX
1,7 Km
Eneldrive Viale Trento Trieste
1,8 Km
Scuole Scuole
Istituto comprensivo "M. E. Lepido"
400 m
Polo scolastico Motti - Zanelli (Coviolo)
630 m
Scuola primaria e scuola dell'infanzia statali "Dante Alighieri"
1,1 Km
Scuola primaria "A. Bergonzi"
1,2 Km
Scuola primaria statale "S. Giovanni Bosco"
1,3 Km
Farmacia Farmacia
Farmacia comunale Roncina
600 m
Farmacia Coviolo
860 m
Farmacia Comunale Gattaglio
1,3 Km
Parafarmacia
1,4 Km
Farmacia della Ghiara Farmacie comunali riunite
1,6 Km
Ospedali Ospedali
Casa di cura policlinica Villa Verde
1,8 Km
Azienda ospedaliera Arcispedale Santa Maria Nuova
2,1 Km
Supermercati Supermercati
CONAD SUPERSTORE Le Querce
220 m
Coop Vivaldi
650 m
SIGMA Canalina
1,1 Km
Esselunga
1,3 Km
Il Gigante
1,5 Km
Negozi Negozi
Le Delizie dell' orto
1,0 Km
Forno Antichi Sapori
1,4 Km
Forno Castagnoli
1,7 Km
Ps Personal Shopper
1,8 Km
CIA Confederazione Italiana Agricoltori
1,8 Km
Bar Bar
Bar Glennys
700 m
Pellini
1,4 Km
Hausbandt Caffe
1,5 Km
Bar
1,8 Km
Baretto
1,8 Km
Ristoranti Ristoranti
Oasi
300 m
La Pignatta
340 m
Il Girasole
670 m
Zushi
1,4 Km
Pepe Bianco
1,5 Km
Mostra tutto

Caratteristiche

Rif.:
61157984
Piano:
3 con ascensore (Piano basso)
Posti auto:
2
Condizionamento:
Autonomo
Ascensore:
Riscaldamento:
Autonomo
Mostra tutto
Prezzo Prezzo
€ 130.000
Rata mutuo Rata mutuo
€ 613 / mese
Spese annue Spese annue
€ 0
Proponi il tuo prezzoProponi il tuo prezzo

Classe Energetica

E
E
E
E
E
E
E
E
E
Anno di costruzione:
1990
Riscaldamento:
Autonomo
Tipo impianto:
A radiatori
Tipo alimentazione:
Metano

Ti interessa visionare l'immobile?

Fissa un appuntamento  Fissa un appuntamento

Richiedi informazioni

Clicca su Leggi per aprire l'informativa
* Questi campi sono obbligatori

Calcola il tuo mutuo

Semplice e senza impegno
Anticipo

( % )
Mutuo

( % )

pochi semplici passi

inserisci i tuoi dati
Questionario completato
Grazie per aver richiesto un appuntamento senza impegno con un nostro Consulente del Credito e Assicurativo.

Hai inserito correttamente tutti i dati necessari e a breve riceverai una e-mail con un link da convalidare per inviare i tuoi dati.
Affiliato
Tecnoindustriale Srl
Via A.Gramsci, 43 42124 Reggio Nell'Emilia (RE)

Il nostro staff


  • Antonio Petito
    Affiliato

  • Denise Ruffino
    Collaboratrice

  • Fabio Valentini
    Affiliato

  • Piero Ruffino
    Affiliato
Via A.Gramsci, 43 42124 Reggio Nell'Emilia (RE)
Zona: Reggio Emilia e provincia
Mostra su mappa
Orari: Dal lunedì al venerdì dalle ore 9 alle ore 13 e dalle ore 15 alle ore 20. Sabato su appuntamento
Affiliato
Tecnoindustriale Srl
Via A.Gramsci, 43 42124 Reggio Nell'Emilia (RE)

2026 Tecnocasa Franchising S.p.A. - P. IVA 08365160152 - Via Monte Bianco 60/A 20089 Rozzano (MI). Ogni agenzia ha un proprio titolare ed è autonoma. Privacy policy | Policy utilizzo | Cookie policy