Ufficio in vendita

Reggio Nell'Emilia, Via Gramsci - Mancasale
€ 590.000
565 Mq 565 Mq
5 bagni 5 bagni

Ufficio in vendita

Reggio Nell'Emilia, Via Gramsci - Mancasale

Descrizione annuncio

REGGIO NELL'EMILIA-MANCASALE- UFFICIO IN VENDITA-

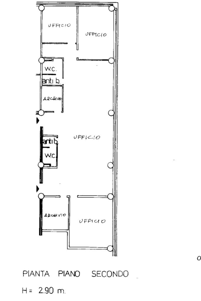
Proponiamo in vendita un ufficio al secondo piano inserito in uno stabile moderno e ben curato che ospita altre realtà professionali, in posizione comoda ai principali servizi e facilmente raggiungibile.

L’edificio è dotato di parcheggio riservato a servizio dello stabile e di ascensore.

L’unità immobiliare si sviluppa su una superficie complessiva di 565 mq ed è caratterizzata da spazi ampi e funzionali.

All’ingresso si viene accolti da una zona reception che introduce a un’organizzazione interna estremamente efficiente, con ambienti ben distribuiti e separati, ideali per soddisfare le esigenze di studi professionali, società strutturate o sedi direzionali.

L’ufficio comprende uffici indipendenti, sale riunioni, aree dedicate al lavoro operativo, oltre a una zona ristoro e ai servizi di pertinenza, offrendo un contesto di lavoro completo e rappresentativo.

La soluzione si distingue per la versatilità degli spazi, la luminosità e il contesto qualificato, rendendola ideale per chi è alla ricerca di una sede professionale di immagine, pronta a supportare attività organizzate e dinamiche.

LIBERO E PRONTO ALL'USO.

PER AVERE MAGGIORI INFORMAZIONI O PRENOTARE LA TUA VISITA PRIVATA CONTATTACI AI SEGUENTI NUMERI 05221965332 o 345 718 6940.

Mostra tutto

Nelle vicinanze

Trasporto pubblico Trasporto pubblico
Reggio Emilia AV Mediopadana
Reggio Emilia AV Mediopadana
680 m
Reggio Mediopadana
Reggio Mediopadana
770 m
Trasporto pubblico
670 m
Via Majorana
Via Majorana
890 m
Reggio Stadio
Reggio Stadio
580 m
Ricariche auto elettriche Ricariche auto elettriche
EnelX EVA+ I Petali - MAPEI Stadium
850 m
LIDL Reggio Emilia Gramsci
910 m
Eneldrive Centro Commerciale l'Ariosto
970 m
Eneldrive Business Park
2,1 Km
Eneldrive Viale Regina Elena
2,4 Km
Scuole Scuole
Scuola primaria statale Balletti - Mancasale
620 m
Scuola primaria statale "Vasco Agosti"
1,3 Km
Scuola dell'infanzia comunale "Girotondo"
1,3 Km
ITC BUS Blaise Pascal
1,8 Km
Liceo di Scienze sociali Matilde di Canossa
1,8 Km
Farmacia Farmacia
Farmacia Via Gramsci
750 m
Parafarmacia E' Qui
870 m
Farmacia Serri
1,0 Km
Farmacia San Prospero
1,5 Km
Farmacia Comunale Santa Croce
1,8 Km
Supermercati Supermercati
Lidl
900 m
Ipercoop
1,0 Km
Conad Le Vele
1,7 Km
ECU
2,4 Km
Eurospar
2,4 Km
Negozi Negozi
Pull & Bear
700 m
Calzedonia
720 m
Tezenis
720 m
Cotton & Silk
750 m
Obaïbi e Okaïdi
750 m
Bar Bar
Bar
1,2 Km
Circolo Tunnel "Bombon3ra"
1,3 Km
Chionso Cafè
1,4 Km
Italghisa
2,0 Km
Bar GSI
2,0 Km
Ristoranti Ristoranti
Puro Blanco
140 m
Tourlè
150 m
Ikki Japanese Restaurant
570 m
Villa Dome
600 m
Asian Dumplings JO
760 m
Mostra tutto

Caratteristiche

Rif.:
61173837
Piano:
2 con ascensore (Piano basso)
Posti auto:
50
Condizionamento:
Autonomo
Ascensore:
Riscaldamento:
Autonomo
Mostra tutto
Prezzo Prezzo
€ 590.000
Rata mutuo Rata mutuo
€ 2.800 / mese
Spese annue Spese annue
€ 0
Proponi il tuo prezzoProponi il tuo prezzo

Classe Energetica

E
E
E
E
E
E
E
E
E
Anno di costruzione:
1990
Riscaldamento:
Autonomo
Tipo impianto:
A radiatori
Tipo alimentazione:
Metano

Ti interessa visionare l'immobile?

Fissa un appuntamento  Fissa un appuntamento

Richiedi informazioni

Clicca su Leggi per aprire l'informativa
* Questi campi sono obbligatori

Calcola il tuo mutuo

Semplice e senza impegno
Anticipo

( % )
Mutuo

( % )

pochi semplici passi

inserisci i tuoi dati
Questionario completato
Grazie per aver richiesto un appuntamento senza impegno con un nostro Consulente del Credito e Assicurativo.

Hai inserito correttamente tutti i dati necessari e a breve riceverai una e-mail con un link da convalidare per inviare i tuoi dati.
Affiliato
Tecnoindustriale Srl
Via A.Gramsci, 43 42124 Reggio Nell'Emilia (RE)

Il nostro staff


  • Antonio Petito
    Affiliato

  • Denise Ruffino
    Collaboratrice

  • Fabio Valentini
    Affiliato

  • Piero Ruffino
    Affiliato
Via A.Gramsci, 43 42124 Reggio Nell'Emilia (RE)
Zona: Reggio Emilia e provincia
Mostra su mappa
Orari: Dal lunedì al venerdì dalle ore 9 alle ore 13 e dalle ore 15 alle ore 20. Sabato su appuntamento
Affiliato
Tecnoindustriale Srl
Via A.Gramsci, 43 42124 Reggio Nell'Emilia (RE)

2026 Tecnocasa Franchising S.p.A. - P. IVA 08365160152 - Via Monte Bianco 60/A 20089 Rozzano (MI). Ogni agenzia ha un proprio titolare ed è autonoma. Privacy policy | Policy utilizzo | Cookie policy