Capannone in affitto

San Martino In Rio, Via Roma
€ 1.800 / mese
400 Mq 400 Mq
2 bagni 2 bagni

Capannone in affitto

San Martino In Rio, Via Roma

Descrizione annuncio

CAPANNONE INDIPENDENTE IN AFFITTO-SAN MARTINO IN RIO-

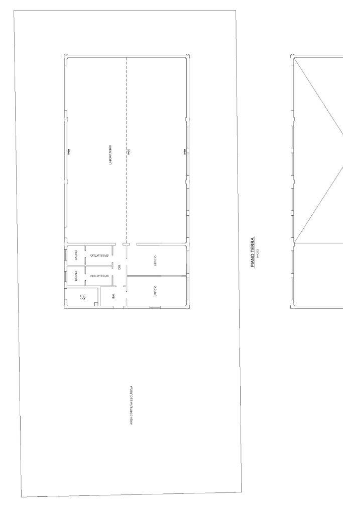
Proponiamo in locazione nella zona industriale di San Martino in Rio capannone indipendente di complessivi 400 mq, edificato su lotto di circa 1.000 mq, soluzione ideale per attività artigianali, produttive o di deposito che necessitano di indipendenza e area esterna privata.

L’immobile è composto da una superficie produttiva/magazzino oltre a una zona uffici, servizi e spogliatoi per un totale di circa 100 mq.

Gli ambienti direzionali e di servizio sono attualmente in fase di completa ristrutturazione, garantendo così spazi rinnovati e pronti ad accogliere l’attività del futuro conduttore.

Il capannone è dotato di portone automatico e dispone di ampia area cortiliva esclusiva.

LIBERO DA APRILE.

PER AVERE MAGGIORI INFORMAZIONI O PRENOTARE LA TUA VISITA PRIVATA CONTATTACI AI SEGUENTI NUMERI 05221965332 o 351 603 4513.

Mostra tutto

Nelle vicinanze

Ricariche auto elettriche Ricariche auto elettriche
San Martino Cottafavi | EnelX
520 m
Scuole Scuole
Scuole
240 m
Farmacia Farmacia
Farmacia
360 m
Supermercati Supermercati
COOP
10 m
Supermercati
700 m
Mostra tutto

Caratteristiche

Rif.:
61183104
Piano:
Terra
Posti auto:
10
Condizionamento:
Autonomo
Ascensore:
No
Riscaldamento:
Autonomo
Mostra tutto
Prezzo Prezzo
€ 1.800 / mese
Spese annue Spese annue
€ 0

Classe Energetica

F
F
F
F
F
F
F
F
F
Anno di costruzione:
1990
Riscaldamento:
Autonomo
Tipo impianto:
A radiatori
Tipo alimentazione:
Metano

Ti interessa visionare l'immobile?

Fissa un appuntamento  Fissa un appuntamento

Richiedi informazioni

Clicca su Leggi per aprire l'informativa
* Questi campi sono obbligatori
Affiliato
Tecnoindustriale Srl
Via A.Gramsci, 43 42124 Reggio Nell'Emilia (RE)

Il nostro staff


  • Antonio Petito
    Affiliato

  • Denise Ruffino
    Collaboratrice

  • Fabio Valentini
    Affiliato

  • Piero Ruffino
    Affiliato
Via A.Gramsci, 43 42124 Reggio Nell'Emilia (RE)
Zona: Reggio Emilia e provincia
Mostra su mappa
Orari: Dal lunedì al venerdì dalle ore 9 alle ore 13 e dalle ore 15 alle ore 20. Sabato su appuntamento
Affiliato
Tecnoindustriale Srl
Via A.Gramsci, 43 42124 Reggio Nell'Emilia (RE)

2026 Tecnocasa Franchising S.p.A. - P. IVA 08365160152 - Via Monte Bianco 60/A 20089 Rozzano (MI). Ogni agenzia ha un proprio titolare ed è autonoma. Privacy policy | Policy utilizzo | Cookie policy